SANITARIOS
Baños, Duchas. Mixtos y Separados
- Mingitorios
- Inodoros
- Lavamanos doble



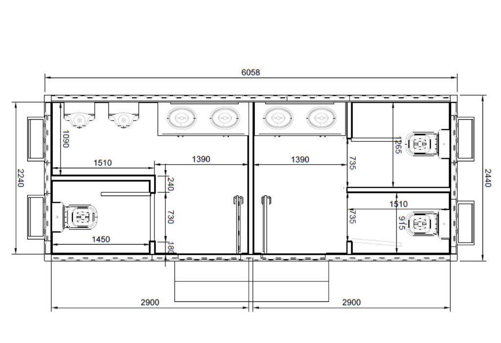
Solo baños, para damas y Caballeros. Módulos de 15 metros cuadrados.
Instalación eléctrica embutida, con tablero de dos circuitos, tomas, luminarias LED, piso vinílico y ventanas modernas 90.
Lado damas: Tres box de inodoro y un lavamanos doble
Lado caballeros: Dos box de inodoro, un mingitorio largo de acero inoxidable y un lavamanos doble.
Terminaciones
- Iluminación Interior y Exterior LED
- Pintura con Protección en Interior y Exterior.
- Instalaciones de Agua en Termofusión
- Pisos
- Revestimiento de Paredes en MDF de 1° Calidad
- Instalaciones Eléctricas bajo Norma IRAM 2281.
- Aislamiento Térmico y Acústico
Dimensiones

LARGO 6,05 m.

ANCHO: 2,35 m

ALTURA: 2,39 m.

PESO: 2.3 TON.
¿Necesitas más información?
Dejanos tus datos y te contactamos ¡Ahora!
- Baño Discapacitados
- Rampa con barandas
- Baño Masculino y Femenino




Baño para discapacitados, con modulo por separado para masculino y femenino.
Instalación eléctrica embutida, con tablero de dos circuitos, tomas, luminarias LED, piso vinílico y ventanas modernas 90.
Terminaciones
- Iluminación Interior y Exterior LED
- Pintura con Protección en Interior y Exterior.
- Instalaciones de Agua en Termofusión
- Pisos
- Revestimiento de Paredes en MDF de 1° Calidad
- Instalaciones Eléctricas bajo Norma IRAM 2281.
- Aislamiento Térmico y Acústico
Dimensiones

LARGO 6,05 m.

ANCHO: 2,35 m

ALTURA: 2,39 m.

PESO: 2.3 TON.
¿Necesitas más información?
Dejanos tus datos y te contactamos ¡Ahora!
¿Necesitas más información?
Dejanos tus datos y te contactamos ¡Ahora!
¡Dejanos tus datos y nos contactamos con vos!
3865351710
Horario 10:00 – 19:00
Domicilio: Bartolomé Mitre 428, Concepción, Tucumán
Email: info@nativaconstructora.com.ar
